Development That Matters!
This exclusive development The Orchard Place matters for the fact that it is designed for quality living where everything works as a pillar to beautify the lifestyle and be at an address for life that ensures changes to ameliorate your standard of living, and keep you content for life, and it is a great place to meet growth of your child where they can indulge in the great range of modern amenities, live around a healthy ambience, stay inside its safe cocoon and even more to give them an intact address where nothing else is required.
And its key features can be seen in its layout where they showcase prime designs, then the leeway to access everything as per your choice to add an active lifestyle and with this, the great use of greenery to create eco friendly and breathable environment.
So every facility over here in The Orchard Place housing is the sign of perfection where the builder has meticulously designed this masterpiece for friendly living.
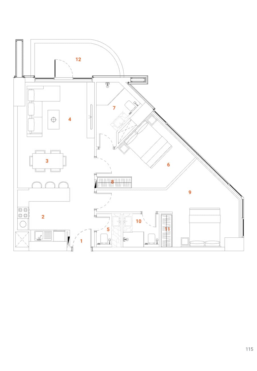
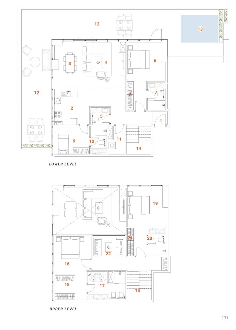
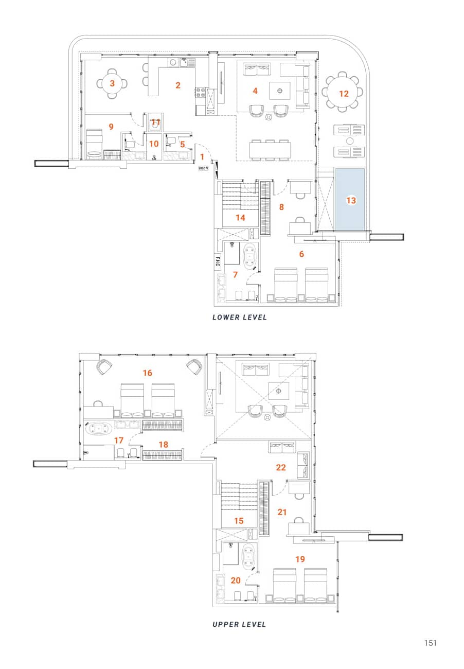
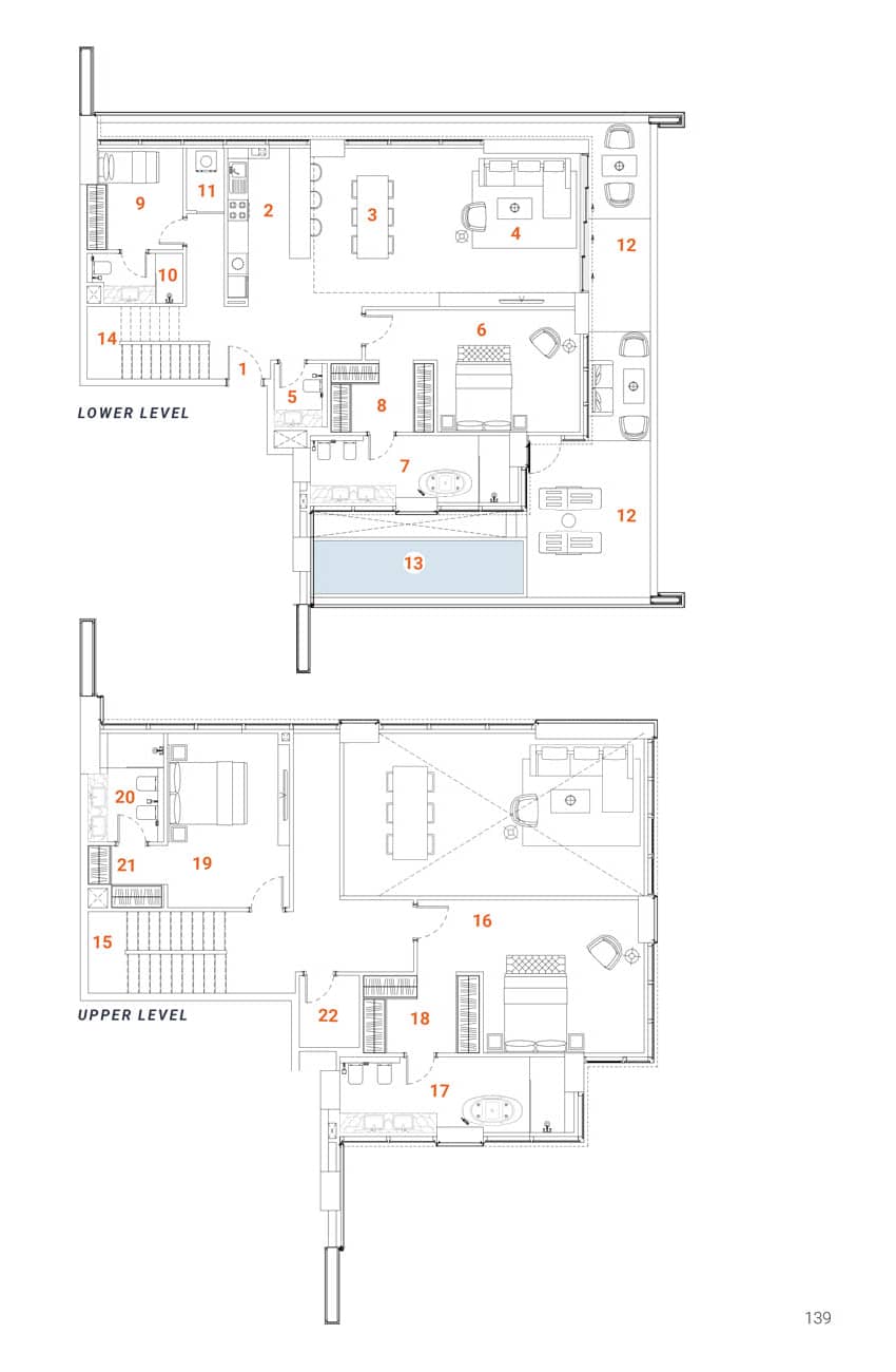
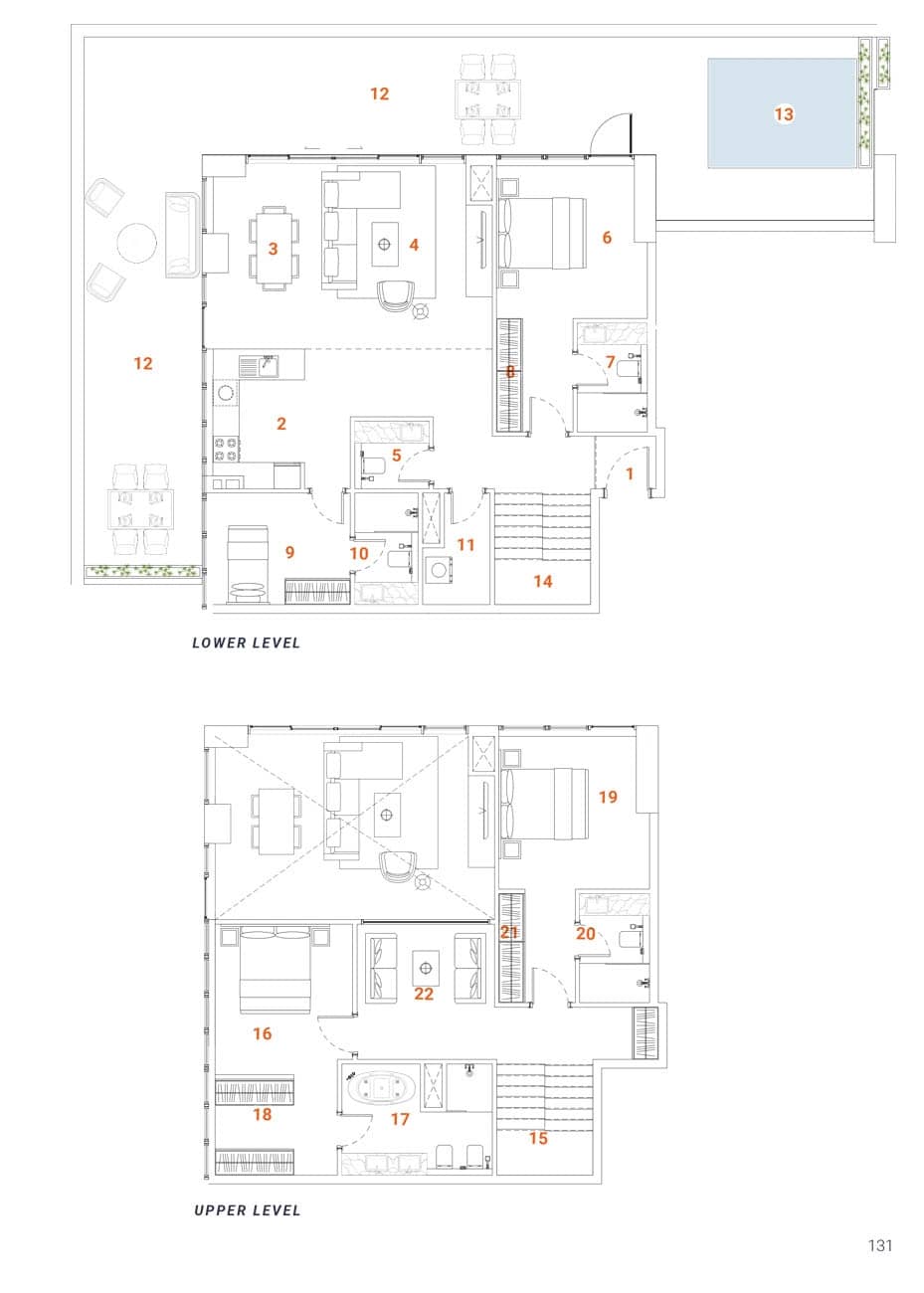
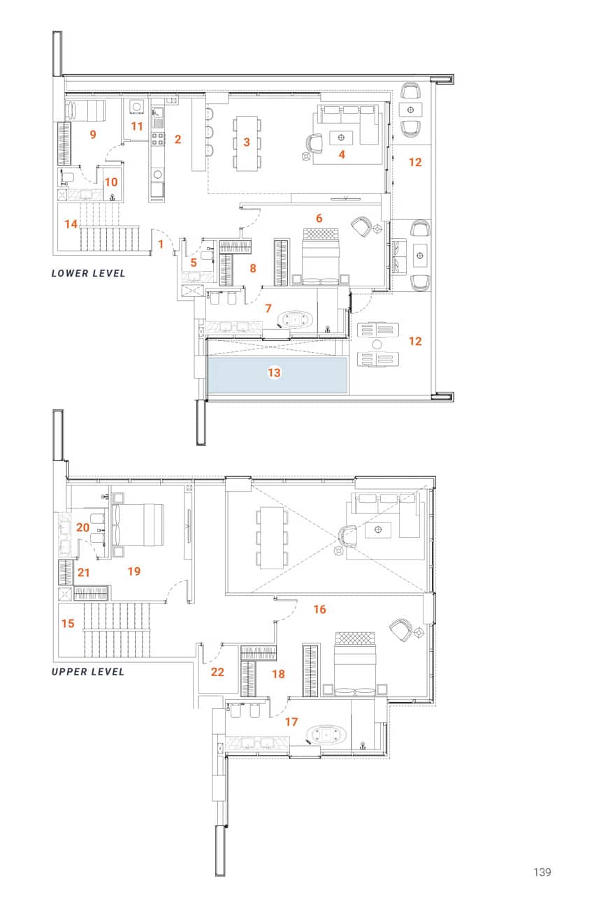
It is not just about the size that matters, but its effective layout that turns the space into great use, so have a look at its floor plan to get 360 view of your space to understand its look & feel: -







No need to get bored in your free time, as the site comes with a pool of services to meet an active lifestyle, and for this, here in The Orchard Place you are free to access everything at one place to enjoy, sit, walk, imbibe, play, socialize and more, so have a look at the range of amenities inside: -
Jumeirah Village Circle is its location which is designed for residents to ensure better livability, and then for this, the presence of all ancillaries inside the community and recreational activities are the real additions to level up the importance of this community in Dubai. To understand its connectivity, have a look at the list of important places of Dubai which are connected from this community of Dubai: -
0 people viewing this project
Limited Period: Free DLD Waiver on select units