


This address gives you the right choice to adopt a lifestyle that values your need and choice to meet a super active and exotic lifestyle where it needs nothing else to polish your style of living, so here the high rise apartment is going to give you manageable ambience to live in with full utilization of the space, and to mega lifestyle, the Binghatti Dusk is wrapped around with an impressive range of amenities that fits well and it targets every member and meets new energy.

A New Chapter Of Luxury Life! Binghatti Dusk is a masterpiece showcasing the true combo of luxury and peaceful surroundings where it forms a picture perfect ambience to walk about its beauty and set up a magical environment to live at its best and cherish the entire place effectively. So for the choices where you get the perfect combination of different apartments where its sizes, facing and layouts make exclusive in its own way, this Binghatti Dusk beauty keeps you content from all sides to meet a quality lifestyle, and even its location Jumeirah Village Circle is a perfect community with friendly ambience to lead a better life with an access to each and everything around.
Never going to get bored as the true range of modern amenities are right placed for you inside Binghatti Dusk JVC to open up a platform of the gym, spa, clubhouse, sports hub, jogging track and even more great options are that give you a new energy to keep yourself active by indulging in any of them at any time you want.
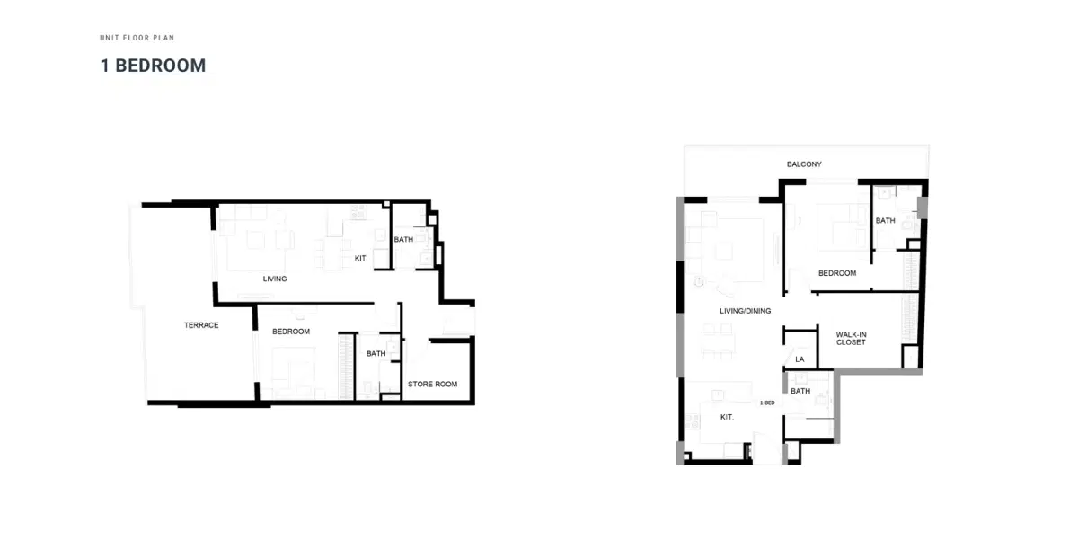
The apartments are manageable with 100 per cent accessibility to the space because of its premium layout that gives a smart space to live in and enjoy the home to garner happy memories, so below you can have a look at its floor plan with deep details: -
We will tell you everything you need to know about Binghatti Dusk








Couldn’t find what you’re looking for? There is a range of other Properties to suit your needs.